物件情報 | 女性のためのマイホーム相談窓口
電話番号
セミナー情報お問い合わせLINE

物件情報

slide01
previous arrow
next arrow

中古戸建 日高市武蔵野台
埼玉県日高市武蔵台1-42-3

埼玉県日高市武蔵台 間取り・外観・キッチン・収納・バス・トイレ 写真

令和7年12月室内、リフォーム済み

中古戸建 埼玉県川越市今成1丁目
埼玉県川越市今成1-23-9

川越市今成1丁目 間取り・配置図・外観・キッチン

LDK14帖+吹抜けで広がりを感じる住まい

中古戸建 川越市大字下広谷
埼玉県川越市大字下広谷931-33

川越市大字下広谷 間取り、キッチン、リビング、和室

全居室6帖以上のゆったり間取り

中古戸建 川越市小仙波町
埼玉県川越市小仙波町3-15-69

川越市小仙波町1丁目 間取り 2,490万円

外壁高圧洗浄済み
LDK17帖の大空間でゆったり暮らす住まい

中古戸建 川越市南大塚
埼玉県川越市南大塚5-26、25

川越市南大塚 3LDK 間取り 1,890万円

エコでスマートな暮らしを両立したオール電化住宅、南向きの陽当り良好な19帖の広いリビング

中古戸建 東松山市上唐子
埼玉県 東松山市上唐子 1469-96

4DK間取り840万円

4DK物件です
和室は、客間、寝室、くつろぎの空間など多目的に使用でき、畳の調湿性やイ草の香りのリラックス効果といった魅力がありますよ

~中古戸建~
埼玉県所沢市中富南3-2-16

間取り 4LDK 2,199万円

大型4LDK間取り!リビングと各部屋がゆとりある空間となります
洗濯干し動線の良い2階ランドリーがございます
縦列駐車2台(車種による)

中古戸建
埼玉県川越市大字的場2561他

間取り図

~価格変更しました~  2線2駅利用可能 JR川越「的場駅」徒歩12分 東武東上線「霞ヶ関駅」徒歩16分

川越市小堤中古戸建
埼玉県川越市小堤字神明455番地3

間取り

価格変更しました2,750万円  南・東・北の3方角地で陽当り良好
太陽光発電システム付きオール電化住宅です
全居室6帖以上あります

新築戸建 川越市大字的場
埼玉県川越市字西若宮595番5(地番)

川越市大字的場 間取り図

JR川越線「的場」駅徒歩19分、住宅街に佇む新築戸建のご紹介です。

新築戸建 狭山市鵜ノ木第10
埼玉県狭山市鵜ノ木4872-1

1号棟 間取り 2,290万円

陽当たり・通風良好な配置計画

新築戸建 鶴ヶ島市中新田 第5 全1棟
埼玉県鶴ヶ島市大字中新田字東久保47-5地番

鶴ヶ島市中新田 間取り2,780万円 3LDK

駅徒歩2分。家事も子育ても、無理をしない暮らしが叶う新築戸建

新築戸建 東松山市大字石橋
埼玉県東松山市大字石橋字庚塚1657-28(地番)

3号棟 間取り・外観・リビング

全4棟 3号棟 駐車2台×17.5帖LDKの新築4LDK

新築戸建て 鶴ヶ島市大字下新田第2
埼玉県鶴ヶ島市大字下新田573-20他

全体区画図と1号棟間取り図2,880万円

坂戸駅から東京メトロ有楽町線・副都心線に乗り入れ、都心へも横浜方面へも快適アクセスできます

新築戸建 坂戸市西坂戸2期
埼玉県坂戸市西坂戸4-1169-13

4LDKの間取りです LDK間仕切対応可です

南向きの明るいLDK20帖!!! LDK間仕切り対応可!

ロイヤルステージ東所沢
埼玉県所沢市東所沢3-21-6

ロイヤルステージ東所沢間取り 1LDK 1,599万円

閑静な住宅地で叶える快適1LDKライフ

中古マンション ~ライオンズマンション本川越第3~
埼玉県川越市西小仙波町1-16-12

ライオンズマンション本川越 2LDK 間取り

3駅3路線利用可
作業に集中しやすく家事がはかどる壁付キッチン

中古マンション ~コスモ霞ヶ関~
埼玉県川越市大字的場2543-1

間取り図など

南側庭の為陽当り良好です

中古マンション ~三田狭山ガーデン~
埼玉県狭山市入間川2丁目3-9

三田狭山ガーデン 間取り図 1,490万円

階下へ足音を気兼ねせず生活できる1階部分です
ガーデニングや家庭菜園ができる専用庭付

中古マンション ~シャルムコート東村山美住町~
東村山美住町1-18-2

シャルムコート東村山美住町 2,790万円 間取り図

南側と東側の2面バルコニーです

中古マンション ネオコーポ武蔵野
東京都東村山市美住町2-3-31

間取り、外観、建物入口

6階部分・眺望良好

中古マンション エコヴィレッジ坂戸
埼玉県坂戸市元町8-1

エコヴィレッジ坂戸 5階 3LDK 

大切なペットと暮らせます(細則有)
日当たり・風通し良好な南向きのお住まい
好きなタイミングで受け取れる宅配ボックス

中古マンション~セザール所沢航空公園
埼玉県所沢市北原町1346-1

間取り図 2,780万円

フルリノベーション物件

中古マンション ~東大和グリーンタウン1号棟~
東大和市立野3-1293-10

間取りです 3LDK

2025年12月フルリノベーション完了
※生活利便性の高い住環境

中古マンション 向陽ハイツB棟 206号
埼玉県所沢市向陽町2174

間取り 室内

価格変更しました。1,680万円
始発駅利用可能で通勤通学に便利です、南向きにつき日当たり良好、ペットと一緒に暮らせます(細則あり)

中古マンション シャルマンコーポ東村山
東村山市富士見町1-8-1

間取り。最上階、南西角部屋です。

最上階物件!!! 南西角部屋・日照・眺望良好です。

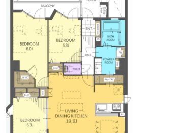
中古マンション ホームタウン宮前住宅6号棟 203
東京都東大和市高木3-342-1

メゾネットタイプ 間取りです

価格変更しました  ルーフガーデン付きのメゾネットタイプです

無料カタログダウンロード
このサイトはreCAPTCHAによって保護されています。Googleのプライバシーポリシー利用規約が適用されます。
女性のためのマイホーム相談窓口